
您当前使用的浏览器版本过低,可能存在安全风险,建议升级浏览器,或者用以下浏览器浏览
空港发展·云玺观宸,是空港发展在怡心湖区域倾力打造的登峯巨作,作为“云玺系”的开篇之作,它立志为城市精心雕琢一处湖居奢藏胜地。在地段优势方面,该项目表现极为突出。它占据着一湖七园的生态高地,成功引领怡心湖迈向全新的享湖时代。
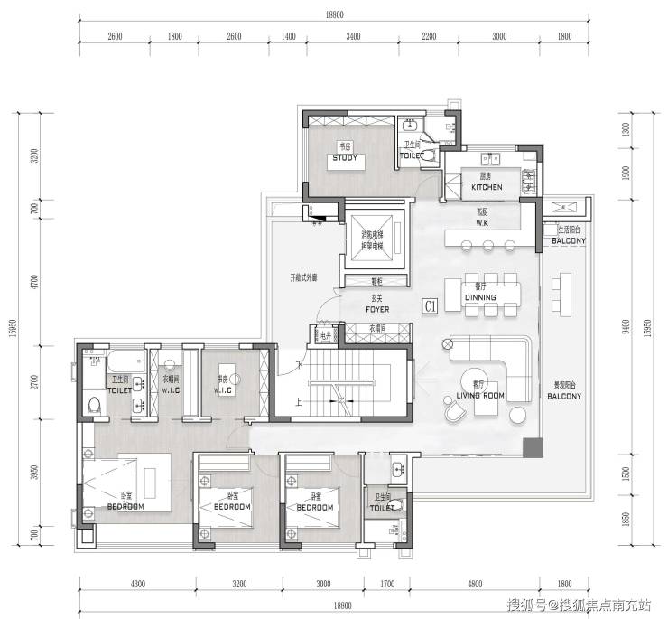
【项目基础信息】空港发展 - 云玺观宸项目定位于空港发展集团峯级产品系中的云玺系,地处怡心湖高端居住区。其目标是打造城南具有代表性的高端城市度假型社区,为业主带来全新的怡心湖奢享生活体验。该项目物业类别为纯住宅,建筑类型是小高层。产权年限达70年,由成都翰云置业有限公司开发建设。总户数为675户,楼栋总数共计22栋 。楼层状况为11 - 17层,层高处于3.15 - 3.3米之间。梯户比设置为2T2、1T1。在房屋面积方面,141㎡户型分布在16 - 17层,168㎡户型位于11层,199㎡户型同样处于11层。预计装修状态为清水交付。项目的各项规划指标如下:容积率为2.0,建筑密度小于20%,绿化率和绿地率均为35%,如此规划为居住者营造出舒适宜人的居住环境。停车位数量多达1276个,车位比达到1:1.87,充分满足业主停车需求。从地理位置来看,项目位于绕城外,占地面积约79亩,建筑面积约10.6万平方米。预计交房时间为2026年12月30日,拿地时间是2022年10月27日,成交楼面地价为12000元/㎡。在物业服务方面,由成都空港城市空间物业服务有限公司提供专业服务,为业主的日常生活保驾护航。
### “7”字规划之首 畅享醇熟星级配套#### 交通——多维路网 畅达全城云玺观宸地理位置得天独厚,交通十分便捷。距离双流机场约10千米,距天府机场约45千米。其所在板块战略意义重大,对上承接华府城市生活功能区,向下连接天府国际生物城与新津,西边与双流航空港接壤,东边则与天府新区、东部新区天府航空港紧密相连。项目周边构建起了庞大且便利的立体交通网络,机场与轨道相互交错、紧密串联。其中,“四横三纵三地铁”的立体交通路网,能让居民迅速畅达全城以及两座机场。具体而言,“三横”指的是牧华路、双兴大道和正公路;“四纵”包含剑南大道、华府大道、物联大道以及京昆高速;“三地铁”分别为已通车的5号线号线,还有规划来源于《成都市城市轨道交通第五期建设规划(2024 - 2029年)》的22号线。#### 商业——高阶商圈 尽显繁华项目周边商业资源丰富,在3千米范围内可尽享成熟商圈带来的便利。项目紧邻尚在规划中的商业邻里中心,周边配套丰富多样。湖区内有万科梦想城、西南地区首家日航酒店,还有银泰INpark、蔚蓝湖滨艺术中心、湖滨商业街等。全球十大酒店管理集团旗下的阿丽拉与凯悦尚萃双国际五星级酒店也坐落于此。此外,正在建设中的空港怡心城备受关注,未来其商业体量预计将超过80万平方米,届时将进一步提升区域商业的繁荣程度,为居民带来更加丰富多彩的消费体验。
### 隐奢之境,低密纯改观湖美居空港峯级力作——云玺系,是约79亩、容积率仅2.0的低密大盘。其中,A区的珍藏级观湖地块尤为出众,这里的临湖美宅,住户只需轻轻推开窗户,便能尽情领略湖光山色的美妙景致。在居住体验上,项目采用高定生活梯户比设计,1T1/2T2的独立入户光厅,为业主打造尊崇私密的归家感受。而整个社区更是中式隐奢风格的典范之作,双入户大堂、下沉式会所、内外双园、地下光厅以及名石名木的巧妙搭配,营造出别具一格的居住氛围。值得一提的是,项目配备约1000㎡的环绕式下沉生活会所。下沉生活会所精心打造灵动的静面水景,在这景观秘境之中,千年东方造园智慧幻化为“守望乌桕”“一池三山”“四水归堂”等充满雅趣的景象。其景观设计视觉效果大开大合且变化丰富,利用高差营造出的水帘瀑布倾泻落入水池,形成飞瀑叠泉的美妙景观。业主归家仿佛置身度假胜地。不仅如此,会所还兼具健身、会客、品茗、儿童游乐等多元功能,为峯层人士量身定制高阶生活方式 。
### 一环一链两轴四院:构建全龄生活空间园区依据“一环两轴万园四院”的空间规划,从使用者视角出发,将多个功能空间融入整体设计,全力打造全龄覆盖的活动空间,旨在营造一个空间布局合理、尺度适宜且充满生活温度的社区。#### 一环——健康悦动生活环在园区内部,精心设置了约1000米的主题跑道。这条跑道犹如一条纽带,串联起热身区、起跑区、健身区等众多元素,能够充分满足不同年龄段人群在健康运动方面的多元需求,为人们提供了便捷且丰富的运动体验。#### 一链——理想湖居生活链园区的设计从怡心湖获取灵感,提炼出五重湖居体验,分别为溪、湖、林、岛、瀑;还有七大生活场景,即品质会客、沐浴阳光、泮水休闲、聚会交友、森林漫步、亲子游乐、浮桥观景等理想湖居元素,并巧妙地将这些元素融入场地设计之中,让居民仿佛置身于如诗如画的湖居盛景。#### 两轴——四季礼遇归家轴1. **约50m奢阔酒店式归家轴**酒店式落客水景,彰显归家的尊崇感;精选的迎宾植被树阵,营造出温馨且优雅的氛围;门楼与两侧景墙完美结合,打造出约50m的超尺度界面,让业主从踏入园区的那一刻起,便感受到不凡的归家仪式。2. **约50m自然沐林归家轴**南入口以建筑与景观一体化的尊享界面亮相,采用对称式设计手法,尽显庄重、大气的整体形象。业主沿着这条归家轴漫步,仿佛穿梭于自然的怀抱,享受四季的礼遇。
【四院——富氧私属院落】这里拥有风格各异、独具特色的多个花园与乐园。其中,约500㎡的泡泡花园,充满梦幻与童趣;约700㎡的阅读花园,弥漫着静谧的书香气息;约750㎡的氧气花园,是清新自然的氧吧;还有约350㎡的山丘乐园,为人们带来无尽欢乐与探索的乐趣 。
141㎡户型亮点呈现:该户型拥有约16.8米面宽,做到四开间全部朝南,充足的阳光可以整日倾洒室内,让每一处空间都充满温暖与明亮。设置有约11㎡的独立入户光厅,为归家之路营造出尊崇又温馨的氛围。生活阳台不仅面积超大方正,能够满足日常晾晒与收纳需求,更可成为一处惬意的小天地。约32㎡的大平层级横方厅,空间开阔,无论是家庭聚会还是休闲娱乐,都能自由随心安排。L型阳台别具特色,约6㎡的户外客厅,让您可以尽情享受户外的清风与美景。此外,还配备独立采光化妆+衣帽间,既满足日常妆容整理所需,又提供充裕的衣物收纳空间 。
166㎡户型亮点满满:拥有约17.35米的超宽南向面宽,极致尺度,充分拥抱阳光与清风。配备约12㎡的独立入户光厅,入户即享明亮开阔,营造出温馨且大气的归家氛围。约21㎡的超大甲板阳台,为生活增添更多惬意空间,无论是休闲观景还是放置绿植,都能轻松实现。约39㎡的LDKB大平层级横厅,南北通透设计,让室内空气时刻保持清新流通,空间感更为宽敞豁达。独立藏宝阁式衣帽间,满足主人对于衣物收纳与展示的精致需求,打造专属的时尚领地。中岛社交U型厨房,不仅操作空间充裕,而且中岛设计为家人与朋友之间的互动交流提供了绝佳场所,让烹饪不再单调。还有X灵动空间,可根据居住者的不同需求自由规划,或是书房、或是茶室,亦或是儿童游乐区,充分彰显空间的灵活性与多样性 。
199㎡户型(T1),堪称板块内户型的“天花板”,在全城范围内都极为稀缺。此户型独具魅力,采用1T1户私享门设计,给予业主私密专属的归家体验。入户处,光厅入户搭配入户花园,让归家之路充满仪式感与自然气息。步入室内,超尺度边厅令人眼前一亮,它带来了270°的环幕视野,让窗外景色尽入眼帘。同时,约17.5米的L型阳台,不仅极大地拓展了室内空间感,更为业主提供了一个可尽情享受阳光与清风的惬意角落。户型格局上,五房三套房的设计充分满足家庭不同成员的居住需求,尤其是总统套主卧,以其奢华的空间与完备的功能,尽显尊贵与舒适 。
温馨提示:若您计划前往【空港发展云玺观宸】看房,为了能享受到更优质、更贴心的接待服务,请提前致电售楼部进行预约。【空港发展云玺观宸】售楼部热线(已认证)此外,您也可以拨打客户经理电话:(微信同号)值得一提的是,项目还提供看房车接送服务。若您有此需求,同样请致电售楼部进行预约 。
声明:本文由入驻焦点开放平台的作者撰写,除焦点官方账号外,观点仅代表作者本人,不代表焦点立场。
【世豪翡丽】售楼中心热线(已认证) 【世豪翡丽】客户经理电话:(微信同号) 温馨提示:了解更多楼盘信息及最新优惠政策,请致电售楼处! 看房请提前线上致电预约,享开发商内部优惠!
成都「合信K101」二八板块、总价30万起、回报率7%的公寓,能买吗?
【合信K101】售楼中心热线】客户经理电话:(微信同号) 温馨提示:了解更多楼盘信息及最新优惠政策,请致电售楼处! 看房请提前线上致电预约,享开发商内部优惠!
【城投少城里】售楼中心热线(已认证) 【城投少城里】客户经理电话:(微信同号) 温馨提示:了解更多楼盘信息及最新优惠政策,请致电售楼处! 看房请提前线上致电预约,享开发商内部优惠!
重庆「和记黄埔御峰」售楼热线月限时购房优惠与开发商网站资讯,助您及时掌握年末置业政策及项目最新动态。
【和记黄埔御峰】售楼部热线(已认证) 温馨提示:看房请提前致电售楼部预约!享内部优惠政策! 【有免费看房车接送服务,如需预约,请致电售楼部】
重庆「凯德九章」售楼热线与开发商网站焕新上线月项目动态及年末限时购房礼遇现已同步揭晓,诚邀品鉴。
【凯德九章】售楼部热线(已认证) 温馨提示:看房请提前致电售楼部预约!享内部优惠政策! 【有免费看房车接送服务,如需预约,请致电售楼部】
重庆「中国重庆湖广」售楼处电话查询、周边教育医疗商业配套深度解析、资产保值潜力评估及最新价格趋势全面解读
重庆「华润置地嘉宸」售房部电话 最新取证价格 楼盘深度解析 开发商特惠房源
重庆「中交中央公园」12月动态更新:售楼热线正式启用,深入剖析房价走势,全面解读项目核心亮点与需关注要点。
成都「合信 K101」售房部电话 公寓平面图 公寓价格 12月最新活动
成都「越秀望悦」售楼热线_预约品鉴_实时房价动态播报_最新购房优惠政策及活动详情---**改写说明**:- **同义词替换与内容扩充**
重庆「九龙金茂晓棠」售楼处热线、项目区位详情、主力户型解析及12月最新房价资讯
郑重提示:本网站作为房产信息聚合类导航网站,仅为方便广大用户掌握信息而提供一站式无偿浏览、查阅的功能,本站楼盘信息并非广告,最终请以政府部门登记备案及开发商公布为准。错误信息举报电话,邮箱。 或点此进行意见反馈,也可点此进行举报投诉。